Referenties
Een beeld van onze projecten en werkwijze
Hieronder ziet u een selectie van ons werk, variërend van gedetailleerde 3D-modellen tot productierijpe 2D-tekeningen. Wij zorgen voor heldere visualisaties en nauwkeurige technische documentatie voor elk project. Van bijna alle onderstaande projecten zijn complete werkplaatstekeningen opgeleverd, maar vanwege de bescherming van intellectueel eigendom (IP) worden deze hier niet getoond.
Silo met Wenteltrap
3D ontwerp van een opslagsilo met geïntegreerde wenteltrap en toegangsbordes op het dak.
Landbouw Machine Constructie
3D ontwerp van een mechanische oogstmachine, inclusief transportbanden en roterende zeven.
Magazijnstelling Systeem
Constructieontwerp van een modulair magazijnstellingsysteem met verstelbare legplanken.
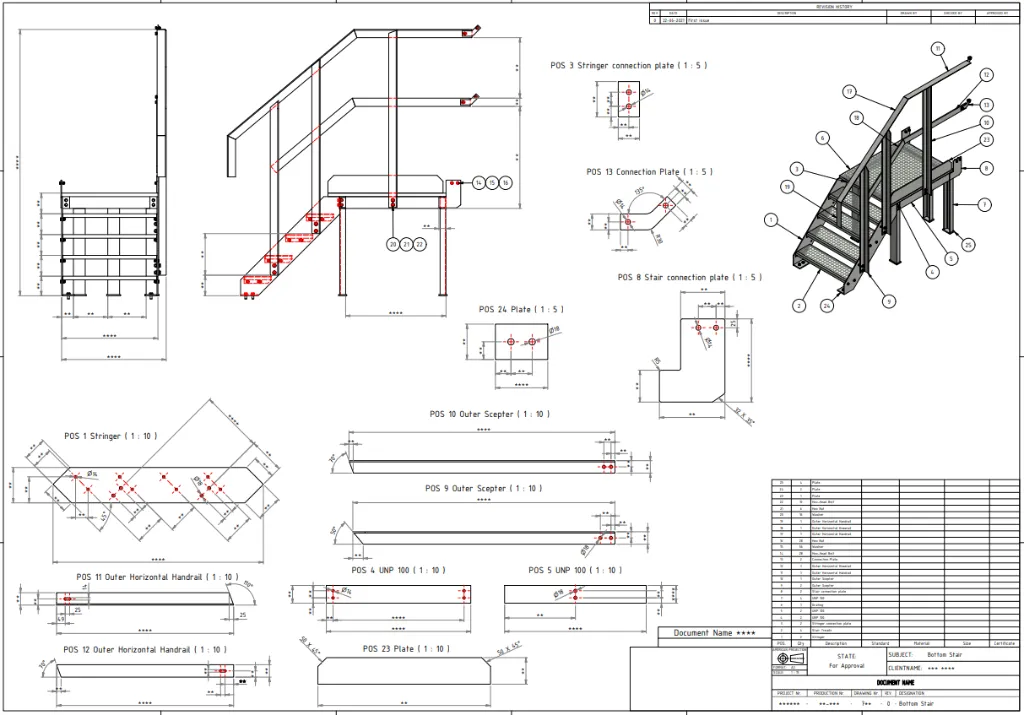
Industriële Trapconstructie
3D engineering van een gebogen industriële trap met bordes conform veiligheidsnormen.
Zware Machinebouw Component
Detail engineering van een robuust onderdeel voor zware industriële toepassingen.
3D Engineering van RVS Opslagtank - Isometrisch aanzicht
Detail engineering van een RVS opslagtank, inclusief bordessen en leidingwerk.
Gestuurd Onderstel Mechanisme
3D engineering van een complex gestuurd onderstel voor een heavy-duty transportwagen.
Verticale Inspectie Robot
Gespecialiseerde robot voor inspectie van verticale leidingen en schachten.
Tank Park Configuratie
Layout studie en visualisatie voor een cluster van vier opslagtanks met toegangstrappen.
Flexibele Askoppeling
3D ontwerp van een heavy-duty flexibele askoppeling met flensmontage voor industriële aandrijvingen.
Liercontainer - Mechanisch Detail
Gedetailleerd 3D aanzicht van de mechaniek en aandrijving binnenin de containerunit.
Heavy Duty Multi-Drive Lier
Grootschalig liersysteem met meervoudige aandrijving (2000kN), ontworpen voor offshore toepassingen.
Dredging Scoop Constructie
Ontwerp en sterkteberekening van een robuuste baggerschop voor maritieme toepassingen.
Verticale Zeefinstallatie
3D ontwerp van een industriële zeef- en filterinstallatie met flensaansluitingen.
Waterzuiveringsinstallatie - Isometrisch
Complete 3D engineering van een waterzuiveringsinstallatie met procesapparatuur en leidingwerk.
Pipeline PIG Disc Assembly
3D ontwerp van een PIG (Pipeline Inspection Gauge) met schijfconfiguratie en centrale as voor pijpleidingreiniging.
Trailer Chassis Constructie
Staalconstructie ontwerp van een trailer chassis frame met koppeling en wielophanging.
Process Skid - Model & Tekening
Volledige uitwerking van een process skid: van 3D detailed engineering tot complete productietekeningen.
Opslagtank - Donkere Coating
Visualisatie van een gecoate opslagtank met wenteltrap en toegangsbordes.
Grote Opslagsilo met Lift
Ontwerp van een grootschalige opslagsilo voorzien van een externe personenlift voor onderhoud.
Filter Behuizing - Geel/Blauw
Variatie op het filterontwerp met alternatieve materialisatie en kleurstellingsstudie.
Opslagtank - Interne Constructie
Interne weergave van een grote opslagtank, inclusief bodemconstructie en dakspanten.
Offshore Lifting Frame
Engineering van een hijsframe voor offshore toepassingen, inclusief toegangsplatformen.
Technische Tekening - Trappen en Bordes detail
Productietekening van industriële trapconstructies, volledig uitgewerkt voor fabricage.
Filter Ontwerp - Materialisatie Studie
Materiaal- en assemblage-analyse via doorsnede visualisatie van een composiet filterontwerp.
Sleepkop (Draghead) Constructie
3D model van een baggersleepkop met jetwaterleidingen en verstelbaar vizier.
Speciale Hijstool - Curved Track
Speciaal gereedschap voor hijswerkzaamheden op een gebogen rail-traject.
Lierinstallatie in Containerframe
3D ontwerp van een heavy-duty liersysteem, volledig geïntegreerd in een beschermend frame.
3D Engineering van RVS Opslagtank - Hoog aanzicht
Volledig 3D model gebruikt voor clash-detectie en visualisatie richting de klant.
Pompassemblage - Explosiediagram
Gedetailleerd explosiediagram van een industriële pomp, inclusief waaier, behuizing en afdichtingen.
Plaatwerk Design - Afvalbak
Detailontwerp van een industriële afvalbak, volledig opgebouwd uit plaatwerk componenten.
Hydraulische Lier Assembly
Gedetailleerde samenstelling van een hydraulisch aangedreven lier met spoelmechanisme.
Z-Transporteur (Opvoerband)
3D constructie van een steile opvoerband (Z-conveyor) met meenemers voor verticaal transport.
Cryogene Opslagtank - Dubbelwandig (Isolatie)
Dubbelwandige opslagtank voorzien van isolatiemateriaal en buitenmantel.
Gecontaineriseerde Lier - 40ft
Totaalontwerp van een grootschalige lierinstallatie ingebouwd in een zeecontainer, inclusief besturingskast en aandrijving.
Liercontainer - Transparant Aanzicht
Transparant containerontwerp dat de interne componenten en lierconfiguratie toont.
Pompstation Leidingwerk
Complexe piping layout van een pompstation met afsluiters, elektromotor en centrifugaalpomp.
RVS Proces Tanks - Dual Setup
Engineering van een dubbele RVS tankopstelling met geïntegreerd bordes en leidingwerk.
Verticale Opslagsilo
3D ontwerp van een hoge opslagsilo met kooiladder en platformconstructie.
Tankpark - Vier Tanks in Lijn
Layout engineering van vier opslagtanks met verbindende loopbruggen en toegangstrappen.
Industriële Transportlijn - Layout
Complete productielijn layout met diverse transportbanden en opvoerbanden voor bulkverwerking.
RVS Tank met Wenteltrap
Realistische rendering van een RVS tank voorzien van wenteltrap en bordes.
Inline Filter - Vooraanzicht
Frontaal aanzicht van de filterbehuizing, focus op inlaatgeometrie en montageflenzen.
Heavy Duty Hydraulische Grijper
Robuust ontwerp voor een hydraulisch aangedreven grijperkop voor zware industriële belasting.
RVS Procestanks - Conische Bodem
Dubbele RVS procestankopstelling met conische bodems, geïntegreerd bordes en kooiladder.
Processing Line Integratie
Systeemintegratie van diverse transportmodules tot een werkende verwerkingslijn.
Inline Filter - Doorsnede Analyse
Technische doorsnede van een inline filterbehuizing, tonen van interne stromingsprofielen en zeefconstructie.
Inline Filter Behuizing - Blauw
3D Concept rendering van een robuuste industriële filterbehuizing met snelsluiting.
Industriële Opslagtank
3D model van een industriële tankconstructie, gebruikt voor ontwerpvalidatie.
Compacte Process Skid
Geïntegreerde process skid met drukvat, warmtewisselaar, pomp en leidingwerk op stalen frame.
Large Scale Cable Drum
Complex liersysteem met grote kabeltrommel, frame en aandrijfunit.
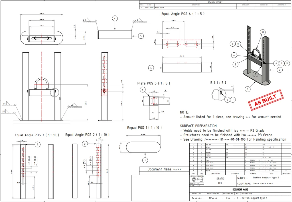
Technische Tekening - Support Constructie
Constructietekening voor leidingondersteuning ('Supports'), inclusief las-details en materiaallijsten.
Brug Mechanisme Detail
Detail engineering van het scharnier- en aandrijfmechanisme van een beweegbare brug.
Cryogene Opslagtank - Dubbelwandig (Intern)
3D engineering van een dubbelwandige cryogene opslagtank, weergave van de interne constructie.
Modulaire Pipeline Inspection Gauge
Langwerpige modulaire PIG voor inspectie van langeafstandspijpleidingen.
Heavy Duty Winch Construction
Constructie van een zware lier met grote kabelcapaciteit en elektrische aandrijving.
3D Engineering van RVS Opslagtank - Bovenaanzicht
Bovenaanzicht van de tankconstructie, met focus op de dakstructuur en toegankelijkheid.
Drukvat met Leidingwerk
3D engineering van een RVS drukvat met geïntegreerd leidingsysteem en afsluiters.
Robotische Grijper Mechanisme
Ontwerp en engineering van een servo-gestuurde robotgrijper voor precisie-pick-and-place toepassingen.
Drijvend Platform Constructie
3D Concept engineering van een drijvend platform met drie drijvers, ontworpen voor specifieke waterbehandelingstoepassingen.
Silo Cluster - Vier Silo's
3D ontwerp van een cluster van vier opslagsilo's met centrale verbindingsplatforms.
Propulsion Unit Shaft Installation
Engineering van de inbouw en installatie van een voortstuwingsunit in een scheepsromp.
Bunkerband met Opzetranden
Detailontwerp van een robuuste bunkerband met hoge zijwanden voor productopslag en dosering.
Transparante Tank met Verwarming
Technische visualisatie van een tank met interne verwarmingsspiralen en roerwerk.
Tandwielkast Transmissie
Gedetailleerde engineering van een tandwielkastoverbrenging, inclusief lagering en behuizing.
Hydraulisch Vergrendelmechanisme
Speciaal gereedschap met hydraulische vergrendeling voor hijs- of koppelwerkzaamheden.
Process Skid - Pompsysteem
Modulaire skid-mounted pompinstallatie met verticale pompen en uitgebreid leidingsysteem.
Gecontaineriseerde Lierinstallatie - Aanzicht
Compacte mobiele lierinstallatie ingebouwd in een zeecontainer frame, gereed voor transport.
Beweegbare Brug Sectie
3D Engineering van een beweegbaar brugdek met hydraulische aandrijving en vergrendeling.
Industriële Motor Set-up
Samenstelling van een industriële dieselmotor met koelpakket en subframe.
Split-Case Industriële Pomp
Gedetailleerd 3D model van een zware split-case centrifugaalpomp met dubbelzijdige waaier en flensaansluitingen.
Verhoogde Tank met Platform
Compacte opslagtank op verhoogd staalframe met toegangstrap en werkplatform.
Skidding Transport Frame
Ontwerp van een heavy-duty skidding frame voor het horizontaal verplaatsen van zware lasten.
Advanced In-Line Inspection Tool (PIG)
High-tech inspectietool voor pijpleidingen, voorzien van geavanceerde sensoren en aandrijfmechanisme.
Dual-Module Pipeline Robot
Geavanceerde inspectierobot met dubbele moduleconfiguratie voor complexe leidingtrajecten.
Tank Toegangsluik met Beugel
Engineering van een veiligheidsluik met draaibeugel voor toegang tot grote opslagtanks.